Описание
Характеристики
Отзывы
Описание
Необходимость применения:
Жироуловители надежно предохраняют бытовую канализацию от загрязнения, так как жировые материалы при снижении температуры воды способствуют формированию отложений загрязнений в коммуникациях, что приводит их в аварийное состояние.
Сепараторы жиров защищают очистные сооружения от проблем в эксплуатации, так как присутствие нерастворенных жиров в сточных водах снижает эффективность процессов очистки.
Температура сточных вод, поступающих в жироуловитель, должна быть не более 40 °С!
Сепаратор жиров (жироуловитель) «UNI-S» изготовлен из полипропилена и предназначен для улавливания и удаления неэмульгированных жиров и масел из сточных вод от кухонь, ресторанов, столовых, кондитерских, мясоперерабатывающих и других предприятий перед выпуском образующихся сточных вод в очистные сооружения или городскую канализационную сеть.
Жироуловитель можно устанавливать непосредственно под мойки и в варианте для установки внутри помещения под пол (сифон на оттоке) или на полу (свободно стоящий).
Преимущества:
Высокая эффективность;
Компактность;
Гарантированная водонепроницаемость;
Несложный монтаж;
Минимальные расходы на установку;
Длительный срок эксплуатации;
Удобный доступ к накопителю жиров;
Удобство в обслуживании.
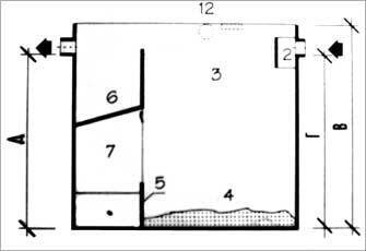
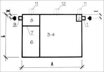
УСТРОЙСТВО И ПРИНЦИП РАБОТЫ.
Зажиренные сточные воды попадают в установку самотеком по трубе диаметром 50-150 мм. Вода самотеком проходит по всем технологическим емкостям, освобождаясь от взвешенных веществ, концентрирующихся в резервуаре для осадка (4) и от жировых материалов, концентрирующихся в сепараторном пространстве (3) и затем самопроизвольно или принудительно концентрирующихся в сборнике жира (6). Тяжелые загрязнения из зоны (4) удаляются периодически по мере накопления с последующей утилизацией или выбросом. Сброс осадка в канализацию недопустим, т.к. он содержит жиры и тяжелые минеральные примеси, затрудняющие транспортирование сточных вод. Перегородка (5) обеспечивает задержание тяжелого осадка.
После жироуловителя органогенные сточные воды, освобожденные от жира и тяжелых загрязнений, совместно с другими стоками могут отводиться в канализацию без ограничения.
ПЛАН. СЕЧЕНИЕ СЕПАРАТОРА
Условные обозначения:
1 – горловина вточного трубопровода
2 – направляющая камера
3 – сепараторное пространство
4 – резервуар для осадков
5 – перегородка резервуара для осадков
6 – сборник жира
7 – впитывающий тоннель
8 – отточная камера
9 – отточный трубопровод
10 – арматура (у ОТБ-4)
11 – альтернативное расположение приточного и отточного трубопровода
12 – возможное расположение вентиляционного трубопровода (если не вентилируется входной канализационный трубопровод)
*Габаритные размеры указаны без длины подводящего и отводящего патрубков.
Жироуловители надежно предохраняют бытовую канализацию от загрязнения, так как жировые материалы при снижении температуры воды способствуют формированию отложений загрязнений в коммуникациях, что приводит их в аварийное состояние.
Сепараторы жиров защищают очистные сооружения от проблем в эксплуатации, так как присутствие нерастворенных жиров в сточных водах снижает эффективность процессов очистки.
Температура сточных вод, поступающих в жироуловитель, должна быть не более 40 °С!
Сепаратор жиров (жироуловитель) «UNI-S» изготовлен из полипропилена и предназначен для улавливания и удаления неэмульгированных жиров и масел из сточных вод от кухонь, ресторанов, столовых, кондитерских, мясоперерабатывающих и других предприятий перед выпуском образующихся сточных вод в очистные сооружения или городскую канализационную сеть.
Жироуловитель можно устанавливать непосредственно под мойки и в варианте для установки внутри помещения под пол (сифон на оттоке) или на полу (свободно стоящий).
Преимущества:
Высокая эффективность;
Компактность;
Гарантированная водонепроницаемость;
Несложный монтаж;
Минимальные расходы на установку;
Длительный срок эксплуатации;
Удобный доступ к накопителю жиров;
Удобство в обслуживании.
УСТРОЙСТВО И ПРИНЦИП РАБОТЫ.
Зажиренные сточные воды попадают в установку самотеком по трубе диаметром 50-150 мм. Вода самотеком проходит по всем технологическим емкостям, освобождаясь от взвешенных веществ, концентрирующихся в резервуаре для осадка (4) и от жировых материалов, концентрирующихся в сепараторном пространстве (3) и затем самопроизвольно или принудительно концентрирующихся в сборнике жира (6). Тяжелые загрязнения из зоны (4) удаляются периодически по мере накопления с последующей утилизацией или выбросом. Сброс осадка в канализацию недопустим, т.к. он содержит жиры и тяжелые минеральные примеси, затрудняющие транспортирование сточных вод. Перегородка (5) обеспечивает задержание тяжелого осадка.
После жироуловителя органогенные сточные воды, освобожденные от жира и тяжелых загрязнений, совместно с другими стоками могут отводиться в канализацию без ограничения.
ПЛАН. СЕЧЕНИЕ СЕПАРАТОРА
Условные обозначения:
1 – горловина вточного трубопровода
2 – направляющая камера
3 – сепараторное пространство
4 – резервуар для осадков
5 – перегородка резервуара для осадков
6 – сборник жира
7 – впитывающий тоннель
8 – отточная камера
9 – отточный трубопровод
10 – арматура (у ОТБ-4)
11 – альтернативное расположение приточного и отточного трубопровода
12 – возможное расположение вентиляционного трубопровода (если не вентилируется входной канализационный трубопровод)
*Габаритные размеры указаны без длины подводящего и отводящего патрубков.
Характеристики
Вес
272
Высота
2440
Длина
2100
Ширина
1000
Серия
UNI-S 5 лонг
Цена с НДС
210709.2
Склад в городе
Лабанова
Производительность (л в сек.)
5
Производительность (м3 в час)
18
Отзывы
Отзывов еще никто не оставлял
